-
MAISON T4 SUR TERRAIN
-
Critères
TransactionVenteLogementMaisonNombre de pièces4Surface84 m²Date de construction1974ChauffageÉlectrique RadianDescription
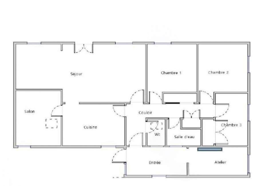
Cévennes Gard Vente Maison T4 de 84 m² habitables sur 1883 m² de terrain. La maison se compose d’une cuisine, un grand séjour donnant sur une belle terrasse. Trois chambres, une salle d’eau, un wc séparé, une entrée. Un atelier de 8m². Consultez nos annonces sur www.levigan.net.
Carte
Tarif
Prix de vente124.500 € F.A.IPerformance énergétique
Nous contacter pour cette annonce
Vous souhaitez louer ou acheter ce bien ? Laissez nous vos coordonnées en remplissant ce formulaire !
* Champs obligatoires

