-
Appartement T4
-
Critères
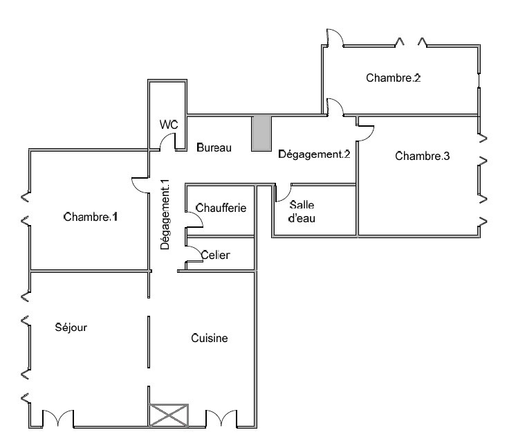
TransactionLocationLogementAppartementNombre de pièces4Surface126 m²ChauffageChauffage Central Gaz de VilleDescription
Un grand appartement de caractère en rez-de-chaussée qui comprend une cuisine aménagée, un séjour, une salle d’eau, un wc séparé, 3 chambres dont une donne sur une terrasse, un cellier, une chaufferie et un espace bureau. Une cave. CC gaz de ville et double vitrage.
Carte
Tarif
Loyer CC759 €/moisDont charges52 €/moisHonoraires locataire472 € TTCDépôt de garantie707 €Type de bailNon meubléEncadrement du loyerNonPerformance énergétique
Nous contacter pour cette annonce
Vous souhaitez louer ou acheter ce bien ? Laissez nous vos coordonnées en remplissant ce formulaire !
* Champs obligatoires

